Palace of Youth





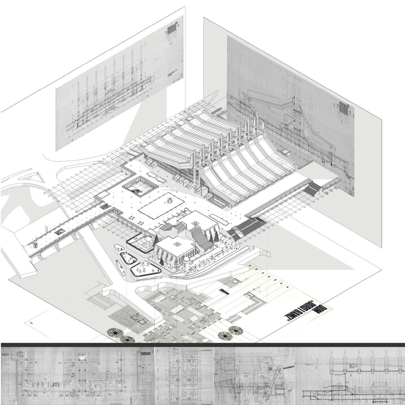
Over the years, it has carried different names. But its importance and significance have remained the same. One of the city's most iconic landmarks—a testament to determination and a symbol of dedication to the common good. We’ve given it a new life. Beyond the lines on paper and the bricks held together with mortar, the Youth Palace now belongs to the digital world. To the future. But to achieve this, we had to return to the past. We delved into old plans, books, and notes buried in forgotten archives. Reconstructing it, line by line and detail by detail. Every single part. Down to the smallest elements. The halls that, beyond art and culture, hold vivid memories of historic events have been carefully analysed, piece by piece. The shops and meeting points of past eras, whose walls have absorbed countless stories, have been reopened. The gym—where sweat and tears of victories blend with the frustrations of losses—and even the spaces that have yet to witness either, have been prepared for the future. Every space. Every pillar and beam. And everything connected to them. All of it brought together in one comprehensive model. A model suited for design and visualization. For coordination and collaboration. And for documentation and specification. Management is simplified because the building’s data is complete and centralized. Every repair is easier, with costs pre-calculated, because every surface and material is known and accounted for. With accuracy and confidence. In every scenario. What you’ve already seen and what you’ll see for the first time. Because the Youth Palace, as much as it belongs to the past, is needed for the future. For the Prishtina of the future. All of it brought together in one comprehensive model. A model suited for design and visualization. For coordination and collaboration. And for documentation and specification. Management is simplified because the building’s data is complete and centralized. Every repair is easier, with costs pre-calculated, because every surface and material is known and accounted for. With accuracy and confidence. In every scenario. What you’ve already seen and what you’ll see for the first time. Because the Youth Palace, as much as it belongs to the past, is needed for the future. For the Prishtina of the future.